中村グリーンマンション1号棟の購入・売却はエム・グラの仲介(エム・グランプレージ) | 1階 | 練馬区 | 中村1丁目 | 投資用売り店舗・事務所 | 練馬駅 | 東京都 | 西武池袋線の物件情報 | 不動産投資 | 収益物件 | 事業用不動産 | 売物件 | 売買 | 売却
こちらは販売中物件です。ホームページを見たとお伝えいただけるとご案内がスムーズです。
(電話:03-4400-0777)・PC・スマートフォンからのお問合せも可能です。お気軽にお問合せください。
情報更新日:2026/3/22 次回更新日:随時
≪ “縁でつながる未来“ エム・グラの仲介 ≫
【どんな会社?】
メガバンク系大手仲介会社で培った高い物件調査力と、仕入から工事・販売までを一貫して手がける買取再販会社での実務経験を併せ持つ、2024年開業の不動産事業を通じて多くのお客様にご満足いただける取引に挑戦し続けている会社です。
売り手・買い手双方の当事者目線に立った知識と経験を融合し、投資家・事業者の皆様に信頼性の高い情報提供とご提案を行うことを強みとしてる投資用・事業用不動産に特化した会社です。
特定の判断を急がせるようなご提案や、過度な営業行為は行っておりませんので安心してお気軽にお問い合わせください。
■■■投資用売り店舗・事務所■■■
───── 販 売 価 格(税 込) ─────
3,180万円
───── 表 面 利 回 り ─────
8.30%(賃貸中)
───── 専 有 面 積 ─────
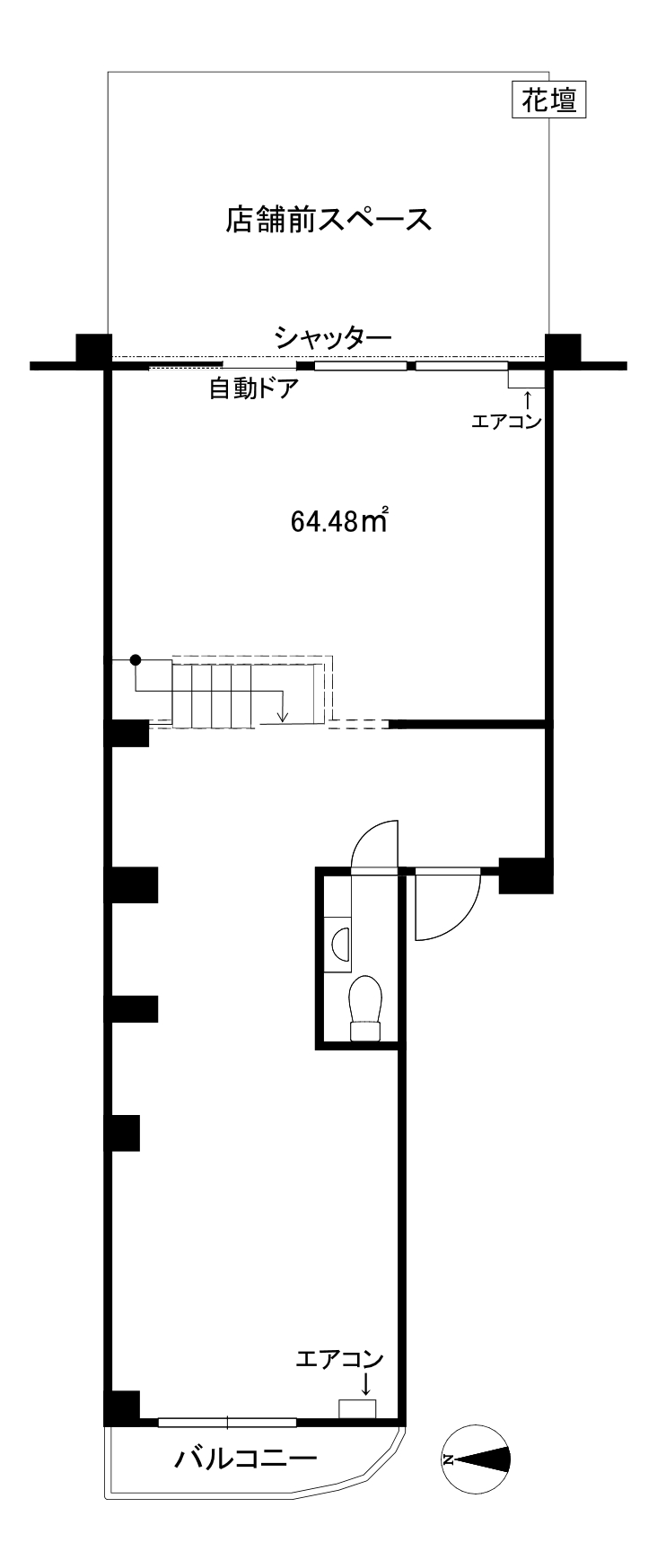
64.48㎡
- クリックして拡大
- クリックして拡大
From Seller’s voice
(売主様からいただいた声)
しっかり内装工事を行いました。気に入っていただけると幸いです。
≪MENU➡厳選物件情報➡カテゴリ➡お好みの物件を検索可能です≫
こんな方におすすめ
・✔練馬区で探している
・✔なるべく管理のしやすい近所で探している
・✔オフィス移転業会社へ賃貸中
・✔新規リフォーム済
・✔視認性良好
・✔バス通りの路面店舗
・✔店舗前に広いスペース有り
👉1つでも当てはまれば、一度ご相談ください
🟠ご購入資金については、現金または融資のご利用が可能です
🟠まだ購入を決めていなくても大丈夫です
🟠ご相談内容は秘密厳守
~新規リフォーム内容~
■床下地 ■フロアタイル ■建具(トイレ) ■クロス ■階段・手摺り ■クレセント交換 ■玄関・天井塗装 ■トイレ(TOTO製) ■洗面台(LIXIL製) ■給湯器 ■給排水管・給湯管 ■ルームエアコン ■モニター付インターホン ■スイッチコンセント ■分電盤 ■ライティングレール ■スポットライト ■網戸張替 ■カーテンレール ■クリーニング、他
───── 物 件 名 ─────
中村グリーンマンション1号棟
───── 所 在 地 ─────
東京都練馬区中村1丁目(地図で表示)
───── 交 通 ─────
西武池袋線「練馬」駅徒歩14分
都営大江戸線「練馬」駅徒歩14分
『南蔵院』バス停目の前、徒歩1分
───── 建 物 構 造 ─────
鉄筋コンクリート造
───── 築 年 月 ─────
1977年3月(昭和52年)
───── 専 有 面 積 ─────
64.48㎡(約19.50坪)
───── バ ル コ ニ ー 面 積 ─────
2.01㎡(約0.60坪)
───── 所 在 階 ─────
地上3階建 / 1階部分
───── 間 取 り ─────
店舗・事務所
【収支項目】
───── 実 質 年 間 収 入 ─────
───── (NOI) ─────
2,297,354円
───── 表 面 利 回 り ─────
───── (グロス利回り) ─────
8.30%
───── 実 質 利 回 り ─────
───── (NOI利回り) ─────
7.22%
───── 預 か り 敷 金・保 証 金 ─────
600,000円
───── 現 在 の 賃 貸 契 約 期 間 ─────
2024.4.1~ 3年間(普通賃貸借)
───── 借 主 ─────
オフィス移転業
~収入項目~
───── 月 間 収 入 ─────
220,000円(税込)
───── 年 間 収 入 ─────
2,640,000円(税込)
───── 賃 料 坪 単 価 ─────
───── ※小数点以下四捨五入 ─────
11,279円(税込)
~支出項目~
───── 管 理 費 等 [月額] ─────
21,370円
───── 固 定 資 産 税 等 ─────
───── 2025年度 ─────
86,206円
グーグルマップのストリートビューで現地を確認できます
(こちらをクリック)
- クリックで拡大
- クリックで拡大
- クリックで拡大
- クリックで拡大
- クリックで拡大
- クリックで拡大
- クリックで拡大
- クリックで拡大
物件概要
───── 土 地 権 利 ─────
所有権
───── 総 戸 数 ─────
82戸
───── 管 理 費(月額) ─────
6,070円
───── 修 繕 積 立 金(月額) ─────
15,300円
───── そ の 他 費 用 ─────
–
───── 管 理 会 社 ─────
日本ハウズイング㈱
───── 管 理 形 態 ─────
全部委託(-)
───── 用 途 地 域 ─────
第一種住居地域/近隣商業地域
───── 分 譲 会 社 ─────
鐘紡不動産㈱
───── 施 工 会 社 ─────
㈱長谷川工務店
───── ラ イ フ ラ イ ン ─────
東京電力・都市ガス・公営水道・公共下水
───── 設 備 ─────
–
───── 現 況 ─────
賃貸中
───── 引 渡 日 ─────
即時
───── 取 引 態 様 ─────
仲介
ご契約成立の場合、法令の定める基準に従い仲介手数料を申し受けます
物件担当:大浜(おおはま)
【保有資格】
■宅地建物取引士 ■投資不動産取引士
■マンションリノベーションアドバイザー ■民泊適正管理主任者
お客様とはフラットな関係を重視し、数字・条件・事実に基づいた情報提供を行うことを基本姿勢としております。
特定の判断を急がせるようなご提案や、過度な営業行為は行っておりません。
これまで500件以上のご相談に携わらせていただいています。
20年以上不動産業界に関わり、投資用・事業用の売買仲介や買取再販業、賃貸仲介や土地売買まで広範囲での実務経験が特徴です。経験に基づく幅広いご提案やご相談に対応が可能です。
■取引先銀行■
三井住友銀行、東京シティ信用金庫、西武信用金庫、みずほ銀行、三菱UFJ銀行、SBJ銀行、L&Fアセットファイナンス、セゾンファンデックス 他
まだ購入予定が決まっていない方も情報収集目的での資料請求が多数です。
ご質問・ご見学・ご不明な点などございましたら何なりとお申し付けください。
気になる物件は当社公式LINEからも、
見学予約や資料請求が可能です。
是非ご利用ください。
QRコードを読み込みまたは当社公式LINEをクリック
↓
公式LINEで問い合わせる
⇩
FASTATEの詳細を見る
いつもホームページをご覧くださり誠にありがとうございます。
ここでしか見れない物件も多数掲載しております。迷っている間に、物件は動きます。
詳細な内容をお知りになりたい方や、実際に物件を見学したい、購入についてのご相談などは、お電話またはお問い合わせフォームよりお気軽にご連絡ください。
不動産のお手伝いさせていただきます。ご購入資金については、現金または融資のご利用が可能です。
エム・グランプレージへ電話をかける
営業時間(9:00〜19:00)・定休日(水曜日)
03-4400-0777
見学予約・資料請求は24時間受付できます
※担当より原則24時間以内にご連絡いたします











