バロンハイツ大島 | 1階 | 江東区 | 大島7丁目 | 投資用売り店舗・事務所 | 大島駅 | 東京都 | 都営新宿線の物件情報 | 不動産投資 | 収益物件 | 事業用不動産 | 売物件 |
江東区
情報更新日:2025/12/6 次回更新日:随時
■■■投資用売り店舗・事務所■■■
販売価格(税込)
11,380万円
表面利回り
6.37%(現況賃貸中)
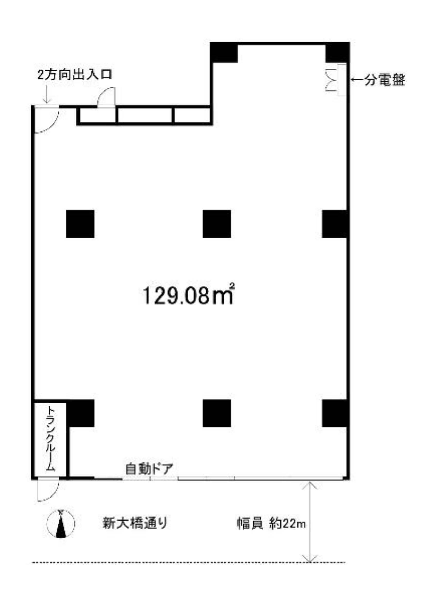
専有面積 : 129.08㎡
From Seller’s voice
(売主様からいただいた声)
ゆったり広さのある1階の店舗事務所です。気に入っていただけると幸いです。
≪MENU➡厳選物件情報➡カテゴリ➡お好みの物件を検索可能です≫
【特徴ピックアップ💬】
■新大橋通り沿い
■視認性が良い1階路面店舗
■新耐震基準適合マンション
■2駅利用可能
■管理体制良好(■2016年1月大規模修繕工事済 ■2021年1月エントランス意匠改修工事済)
■看板設置可(無料)
■トランクルーム付き
■動力三相三線式200V
■ご購入資金については、現金または融資のご利用が可能です
物件名
バロンハイツ大島
所在地(地図で表示)
東京都江東区大島7丁目
交通
都営新宿線「大島」駅徒歩6分
都営新宿線「東大島」駅徒歩7分
建物構造
鉄骨鉄筋コンクリート造・鉄筋コンクリート造
築年月
1982年9月(昭和57年)
専有面積
129.08㎡(約39.04坪)
所在階
地上11階建 / 1階部分
間取り
店舗・事務所
【収支項目】
実質年間収入(NOI)
6,407,394円
表面利回り(グロス利回り)
6.37%
実質利回り(NOI利回り)
5.63%
預かり敷金・保証金
1,650,000円
現在の賃貸契約期間
2023年6月1日~2026年5月31日
3年(普通賃貸借契約)
テナント
フィットネスジムとして
大手上場企業のグループ会社へ賃貸中
(過去テナント:銀行・セブンイレブン・美容室)
~収入項目~
月間収入
605,000円(税込)
年間収入
7,260,000円(税込)
賃料坪単価 ※小数点以下四捨五入
15,494円(税込)
~支出項目~
管理費等[月額]
59,890円
固定資産税等[年額] 2025年度
133,926円
グーグルマップのストリートビューで現地を確認できます
(こちらをクリック)
- クリックで拡大
- クリックで拡大
物件概要
土地権利
所有権
総戸数
29戸
管理費(月額)
40,470円
修繕積立金(月額)
19,420円
その他費用
–
管理会社
ユニオン・シティサービス㈱
管理形態
全部委託(管理員通勤)
用途地域
商業地域
防火規制
防火地域
分譲会社
本洲興発㈱(建築主)
施工会社
日本国土開発㈱
ライフライン
東京電力・都市ガス・公営水道
設備
エレベーター、宅配ボックス
現況
賃貸中
引渡日
相談
取引態様
仲介
■物件説明■
こちらの物件は、賃貸中の物件でございます。賃貸中とは、現所有の売主様、所有希望の買主様以外の第三者である借主様に賃貸して、毎月その賃貸収入を得る不動産投資・不動産オーナー業を目的とした不動産物件です。空室物件と違い、賃貸中のため、自己使用は行うことはできません。賃貸契約の終了等で借主様退去により、空室後は自己使用も可能でございます。
■取引先銀行■
三井住友銀行、東京シティ信用金庫、西武信用金庫、みずほ銀行、三菱UFJ銀行、SBJ銀行、L&Fアセットファイナンス、セゾンファンデックス 他
物件担当:大浜より
~解像度150%をご提供します~
「知りたい情報」と「知りたくないけど知りたい情報」を100%、「聞いてはいないけど知っていても損のない情報」を50%、合わせて150%の高い解像度で不動産をお手伝いいたします!
見た目からは想像できない「マメさ」があると言われます。
なんでもご相談ください!
気になる物件は当社公式LINEからも、
見学予約や資料請求が可能です。
是非ご利用ください。
QRコードを読み込みまたは当社公式LINEをクリック
↓
公式LINEで今すぐ問い合わせる
いつもホームページをご覧くださり誠にありがとうございます。ここでしか見れない物件も多数掲載しております。詳細な内容をお知りになりたい方や、実際に物件を見学したい、購入についてのご相談などは、お電話またはお問い合わせフォームよりお気軽にご連絡ください。不動産のお手伝いさせていただきます。ご購入資金については、現金または融資のご利用が可能です。
エム・グランプレージへ電話をかける
営業時間(9:00〜19:00)・定休日(水曜日)
03-4400-0777
見学予約・資料請求は24時間受付できます
※担当より原則24時間以内にご連絡いたします







